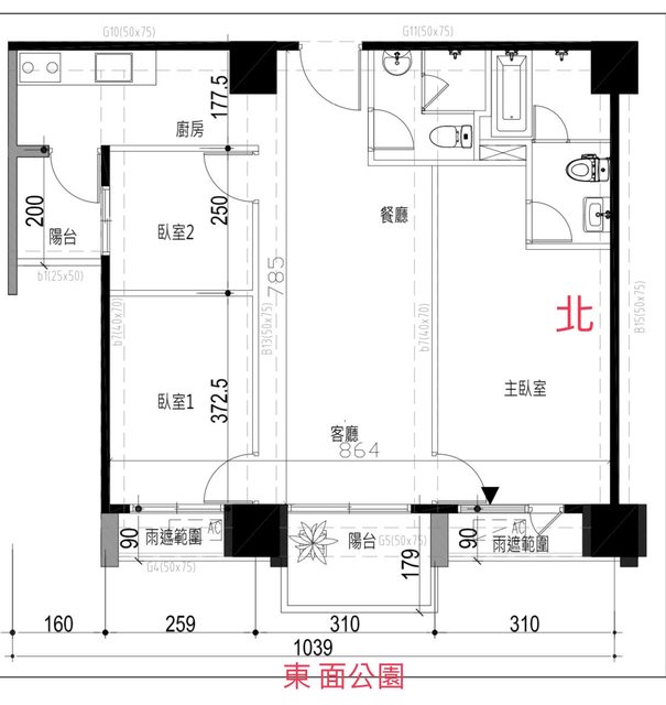
各位前輩大家好 小妹今天下訂一間小三房權狀39坪 想請問格局有什麼缺點 兩間小房間是否該打通呢 或是怎麼改比較好 家庭成員:兩大 兩貓 室內坪數:22.5 目前肉眼可見缺點為兩浴皆無開窗 工作陽台較小 懇請前輩們給些建議 謝謝大家! https://i.imgur.com/g4cKcHK.jpg
----- Sent from JPTT on my iPhone -- ※ 發信站: 批踢踢實業坊(www.ptt-website.tw), 來自: 36.226.211.63 (臺灣) ※ 文章網址: https://www.ptt-website.tw/home-sale/M.1693040133.A.483
johnny853884: 不要買客廳在中間,感覺房子比較小 08/26 17:00
momomom: 沒啥不好啊 衛浴就抽風吧 08/26 17:04
keanelove: 不介意吃柱跟衛浴沒開窗,覺得是不錯的格局又面公園。( 08/26 17:10
keanelove: 個人喜歡 08/26 17:10
peheart: 兩間小間打通比較好 08/26 17:21
SEDAP: 包養輕鬆找到有趣的異性朋友。 08/26 17:21
jess851007: 沒有浪費空間在走道上很優 但主臥牆壁有個水管道空 08/26 17:42
jess851007: 間 可能會有噪音問題 整體我覺得還不賴 08/26 17:42
chen831030: 吃了一些柱? 08/26 17:55
bustinjieber: 欸那個,沒有玄關鞋櫃喔 08/26 18:01
bustinjieber: 大門那根柱子大概80公分,有點小 08/26 18:02
TUZom: 包養平台遇見心儀對象。 08/26 18:02
bustinjieber: 甚至不到,看你們的鞋量 08/26 18:03